ANNICCO -CR- AMPLIAMENTO SCUOLA ELEMENTARE

Il progetto prevede due tipi di intervento:

- il primo relativo al corpo di ampliamento;

- il secondo relativo alla realizzazione di alcune opere di ristrutturazione nell'edificio esistente;

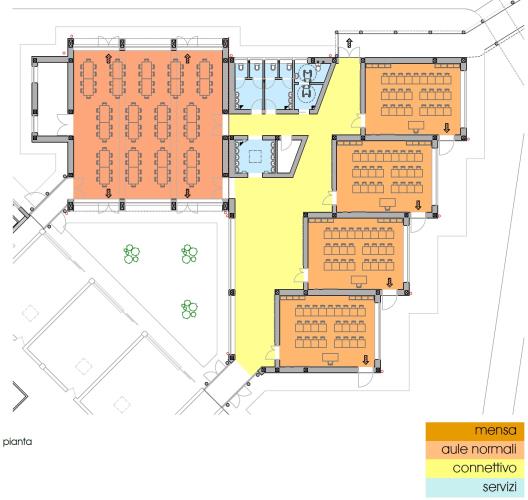
Il progetto prevede una configurazione planivolumetrica generale dove l'ampliamento si pone come corpo conclusivo e complementare del'intero complesso scolastico.

Tale corpo è caratterizzato dalla presenza di volumi (quattro aule,servizi e mensa) più articolati rispetto all'esistente. Questi volumi sono distinti per forma e dimensione, e connotano pertanto le diverse funzioni che in essi si svolgono.

 

Progetto Definitivo approvato

 




 


Torna all'indice dei lavori


 
?
  Studio Adenti & Arata Architetti Associati sede legale :via Fulcheria 36, 26012 Castelleone (CR) P. Iva 01196730194 - Privacy Policy